∆侧面全景夜景
∆正面全景夜景
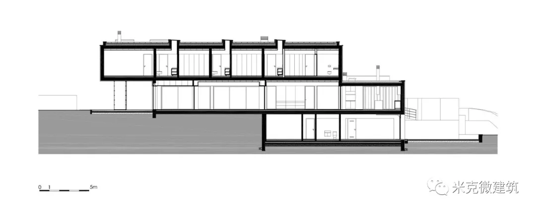
别墅由两部分组成,一侧是临近庭院的一层结构,另一侧是3层结构,两侧功能空间划分明确,互不干扰,又相互贯穿。
∆侧面全景
∆别墅庭院近景
∆近景
入口在庭院中向南敞开,在西边的一层是休闲区,空间独立且功能齐全。
∆别墅庭院近景
∆近景
∆侧面近景
这是一栋非常透明的建筑,从西边享受午后的阳光,在东边则享有与院子和其他结构中的房屋起居室的视觉联系。
∆视野通透的室内泳池
∆室内泳池夜景
∆视野开阔的餐厅空间
∆视野通透的室内过厅
∆视野开阔的客厅空间
∆视野开阔的客厅空间
该结构向东方朝阳和无尽的绿色开放,该绿色远远超出了物业的范围。生活区也向西方开放,两个结构之间的庭院保障私密性。
∆室内过厅
∆室内通道
∆室内通道
∆浴室空间
一层几乎只向东敞开,卧室和浴室的开口将立面标记为凸出的容积,在它们之间形成阳台。还有一个室外楼梯,将地下室连接到客厅的露台。
∆平面图
∆平面图
∆平面图
∆平面图
∆立面图
∆立面图
∆立面图
∆立面图
∆立面图
∆立面图
∆立面图
∆立面图
∆立面图
∆立面图
∆立面图
∆立面图
